Обяви За нас Контакти
Продава 3-СТАЕН
град Стара Загора, Ремиза
При запитване
История на цената
Коригирана в 17:00 на 9 февруари, 2026 год.
Обявата е посетена 4247 пъти.
Площ:
135 m2
Етаж:
2-ри от 5
Газ:
ДА
Строителство:
Тухла, 2027 г.

Описание на имота:


Описание
Без КОМИСИОНА!

Нова кооперация в близост до езеро'Загорка' в град Стара Загора.

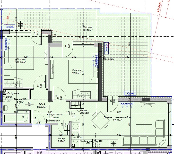
Продаваме просторен и светъл тристаен апартамент, разположен в един от най-желаните райони в непосредствена близост до красивото езеро 'Загорка' и парк Бедечка. Сградата предлага комфорт и спокойствие сред зеленина и природа, разнообразие от жилища, с различна площ, изложение и разпределение. ТРИСТАЕН апартамент е с площ от 135,79 кв. метра. Състои се от всекидневна с кухненски бокс, две спални, баня и тоалетна,килер и тераса изложение изток/север. ТРИСТАИНИЯ апартамент ще бъде издаден в следния вид: стени и тавани шпакловка, под замазка, тераси гранитогрес, ел. инсталация до фасунга и ключ, ПВЦ дограма. Възможност за закупуване на гараж.

Обади се СЕГА и цитирай този код: 622978

Сграда
ТРИСТАЕН апартамент в град Стара Загора, в кооперация ново стоителство на пет етажа с луксозни общи части и асансьор.

Предимства
ТРИСТАЕН апартамент, идеален за семейства, търсещи комфорт и спокойствие в близост до природа, без да се отдалечават от удобствата на градския живот.

Местоположение
ТРИСТАИНИЯТ апартамент е разположен на тихо и спокойно място, в близост до природни забележителности като езерото 'Загорка' и парк 'Бедечка'. В района има добре развита инфраструктура с множество магазини, заведения, училища и детски градини. Удобен достъп до градски транспорт, осигуряващ бързо и лесно придвижване до всички части на града.
Особености
Тухла
Асансьор
Интернет връзка
Контрол на достъпа
Саниран
Възможност за дан. кредит
За контакт:
0883315500
Брокер:
Габриела Петкова
042 66 12 12; 0887 277 870
Офис: гр.Стара Загора, бул.'Руски' 22
Още оферти от брокера: Продава | Дава под наем | Купува | Наема
Агенция:
АДРЕС НЕДВИЖИМИ ИМОТИ
0887277870, 042661212
АДРЕС НЕДВИЖИМИ ИМОТИ logo
Медал за прослужено време
В imot.bg от 2007 г.
address_sz.imot.bg
Адрес:
област Стара Загора, гр. Стара Загора, бул.'Руски' 22
http://www.address.bg
ИЗПРАТИ ЗАПИТВАНЕ
ИЗПРАТИ ЗАПИТВАНЕТО

Продава 3-СТАЕН
град Стара Загора, Ремиза
Обява: 1c171958218440747

При запитване
История на цената

ЗАПАЗИ ОБЯВАТА

Местоположение: град Стара Загора, Ремиза

Допълнителни данни за имотите в района и сравнение с други райони

Покажи

Период

и 2 месеца

* Средните цени са определени чрез медианна стойност